売買物件詳細情報
物件概要
所在地:大阪市平野区大阪市平野区平野馬場1-5-25
最寄駅/交通:関西本線 平野駅 徒步7分钟
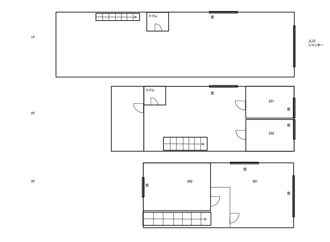
構造・規模:鉄骨造3階建
用途地域:準工業地域
土地権利:所有权
間取り:-
築年月:-
土地面積71.73m2 建物面積-m2 建ぺい率60% 容積率200%管理・設備
管理会社:管理形態:自主管理
管理費:0円
修繕積立金:0円
水道など料金:
駐車場:
エレベーター:無
ガス:
給湯:
評価
現状・引渡:賃貸中固都税:円
収入予定
年間:円
月間:150000円
利回り:
表面:
実質:
備考:広い道向き、倉庫最適 正規手数料払う
◎鉄骨造3階建
◎準工業地域、倉庫として利用最適
◎コンテナ積み込む、デバン作業加
◎準工業地域、倉庫として利用最適
◎コンテナ積み込む、デバン作業加
◎駐車場充実
◎ネットショップ梱包作業場適
◎周辺にはスーパー、コンビニなどあり
◎ネットショップ梱包作業場適
◎周辺にはスーパー、コンビニなどあり
※年間収入(満室予定)は、公租公課・その他必要経費を控除する前の金額であり、現在の賃料または周辺の家賃相場から算出したものです。
この収入は将来に亘り確実に保証されるものではありません。
※表面利回り=年間収入(想定満室)/物件価格
※実質利回り=(年間収入(想定満室)-(管理費・修繕積立金・水道など料金))/物件価格
※管理費・修繕積立金・固定資産税・水道など料金は変動することがございます。
※表面利回り=年間収入(想定満室)/物件価格
※実質利回り=(年間収入(想定満室)-(管理費・修繕積立金・水道など料金))/物件価格
※管理費・修繕積立金・固定資産税・水道など料金は変動することがございます。
CONNECT
TEL:070-8990-6677
E-Mail:mzgestate@gmail.com
WECHAT:kakumizu

